[fusion_smartslider3 slider=”5″ /]
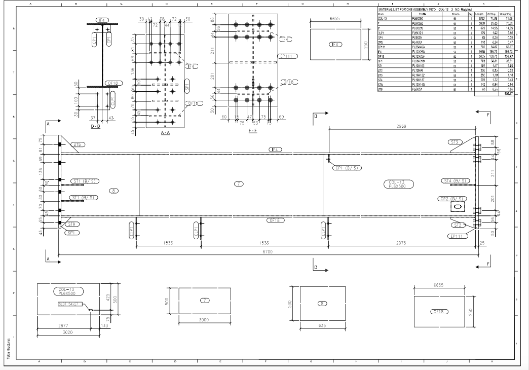
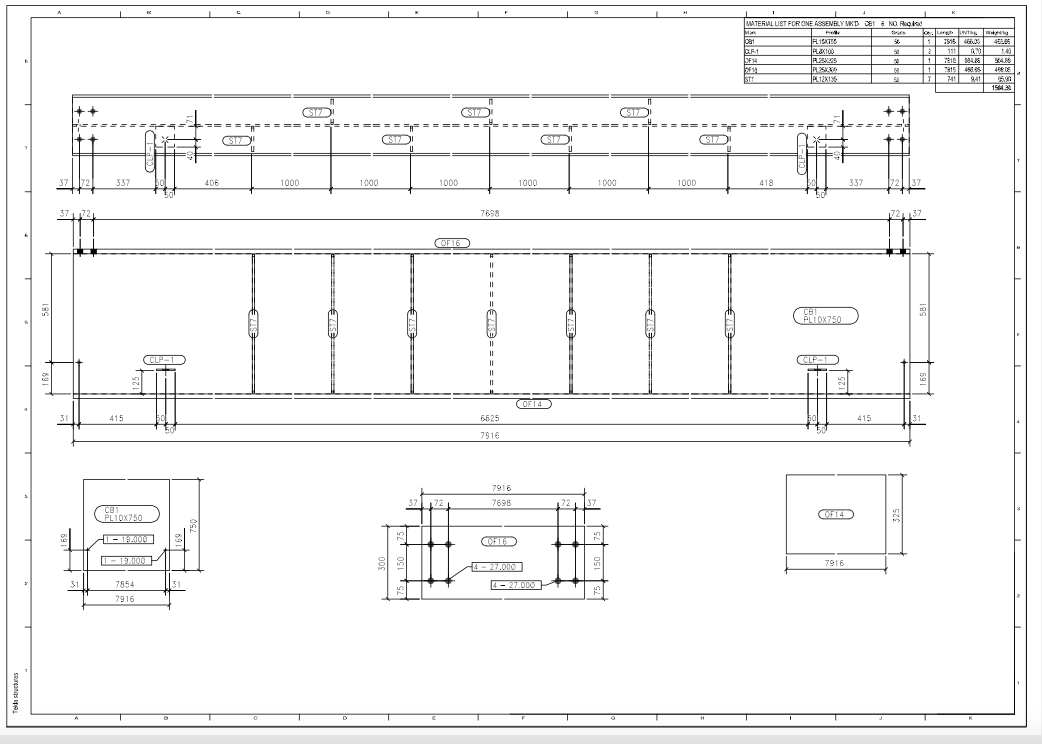
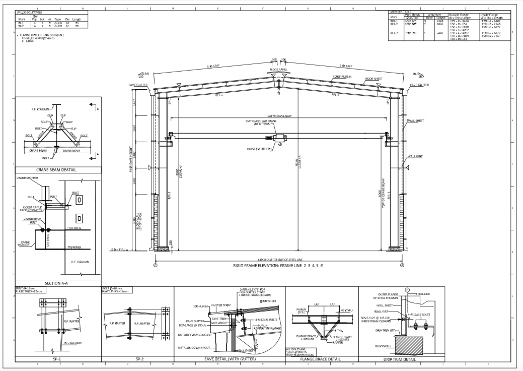
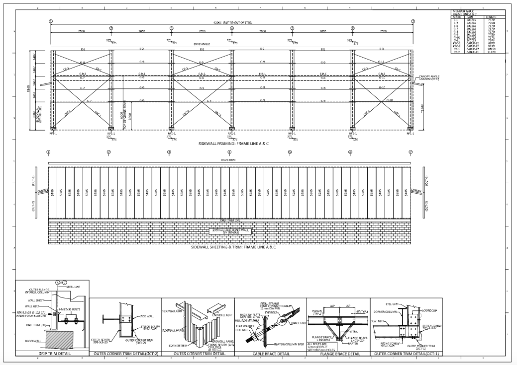
Detailing of Pre Engineered Steel Structure Buildings
The nation’s most skilled engineering and detailing staff is at Pak Fab Pre Engineered Building. Our Pre Engineered Steel Building can provide detailing services for any complicated steel structure by utilizing cutting-edge software and a wide range of experience in the sector.









